Ausrüstungstipp: Neue TV-Halterung wird im Fensterrahmen montiert

Campingland.dk - 07/05-2015

Tips & tricks ·  Hier werden keine Schrauben für die Montage benötigt und Sie ersparen sich den Aufwand mit großen TV-Tischen und Ähnlichem.

Bringen Sie den Flachbildfernseher mit dieser praktischen TV-Halterung einfach ins Vorzelt.

Viele kennen das Problem: Ein sperriger TV-Tisch nimmt viel Platz weg oder der Fernseher muss umständlich durch die Tür getragen werden, weil er an einer Halterung im Inneren des Wohnwagens befestigt ist, um im Vorzelt fernsehen zu können.

Dafür gibt es jetzt endlich eine funktionale Lösung.

Diese clevere TV-Halterung wird einfach am Fensterrahmen befestigt und das Fenster kann für den Transport geschlossen werden.
Die Montage und Demontage ist kinderleicht.

Vorteile:
• Keine Schrauben im Wohnwagen
• Einfache Montage
• Nimmt keinen Platz im Vorzelt ein
• Verkratzt den Wohnwagen nicht
• Trägt Fernseher bis zu 40” Flachbildschirm
• Geringes Gewicht
• Hochwertige Qualität
• Hergestellt in Dänemark

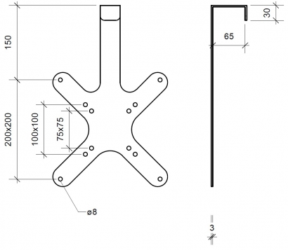
Die Halterung passt für die meisten Flachbildfernseher.
Schraubmaße: 75x75mm – 100x100mm – 200x200mm
2 verschiedene Modelle: Kurze Ausführung 35 cm und lange Ausführung 45 cm